Overview
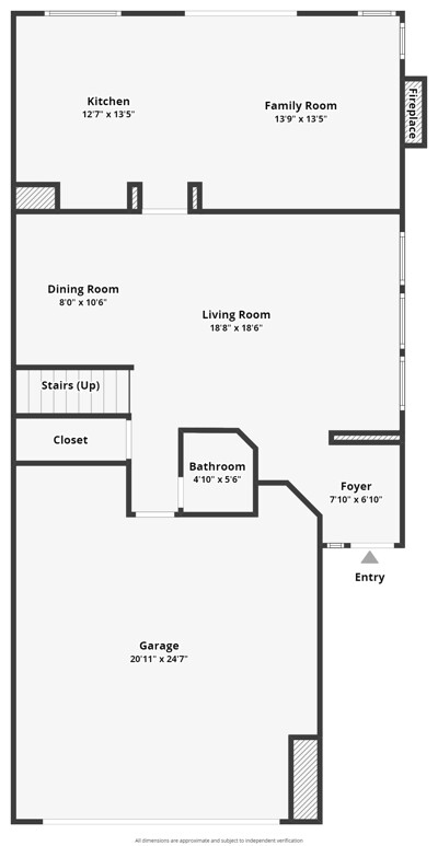
Welcome to the largest model in the highly desirable Tierra Linda community, flanking the Arroyo Trabuco preserve on one side, and Tijeras creek golf course. This turnkey end-unit townhome beauty boasts treetop and wilderness views and is located at the end of a cul-de-sac with a huge greenbelt. Step into the expansive living room with cathedral ceilings, custom paint throughout, and chestnut hardwood flooring. Enjoy the natural light that floods the room through all new dual-paned windows throughout. The upgraded kitchen features granite counters, refinished cabinets, beautifully tiled backsplash, all stainless steel appliances (including refrigerator). The family room off of the kitchen is perfect for entertaining guests with a cozy fireplace to keep you warm. Head out through new sliding door to an enclosed patio with easy to manage concrete flooring, built-in planters, stucco walls, and vinyl fencing. The downstairs bath has tan cabinets and paint. Walk upstairs to all bedrooms with Grey Laminate flooring throughout upstairs. All bedrooms are upstairs, including the huge master bedroom with laminate flooring. The view from the master of homes below and treetop wilderness views is breathtaking. The master bath has dual sinks, large tub/shower, Tile flooring and a large walk-in closet. walk across catwalk to the other two good-sized rooms, One Room with Whimsical Pink. the other at end of hallway both with mirrored wardrobe. The bath at the top of the stairs has a shower / bath with granite counter. Extra Benefit, the home has water softener installed for whole house. Large two-car garage is perfect for parking your vehicles or extra storage space. Nestled within a vibrant small town community, residents can take advantage of a delightful pool, and nearby hiking/biking trails, for an outdoor friendly lifestyle. Golf enthusiasts will appreciate the proximity to Tijeras Creek Golf Course. Also. There are an array of city amenities including beautiful parks, heated swimming pools, beach club with a stunning lagoon with BBQ and picnic area. playgrounds, sports courts (tennis, pickleball, basketball, and volleyball), This townhouse blends comfort, style, and convenience—making it a perfect choice for those seeking a slice of the Californian dream. Distinguished Schools, Low Taxes, No Mello Roos. Rancho voted the second safest city in California for 2 years in a row.